闭口楼承板的几大优势
闭口楼承板作为楼承板中使用率较高的一种,他存在的优势有哪些呢?对于闭口楼承板的这些优势我们又该如何很好的加以利用呢?下面小编带你了解闭口楼承板,了解闭口楼承板的优势。
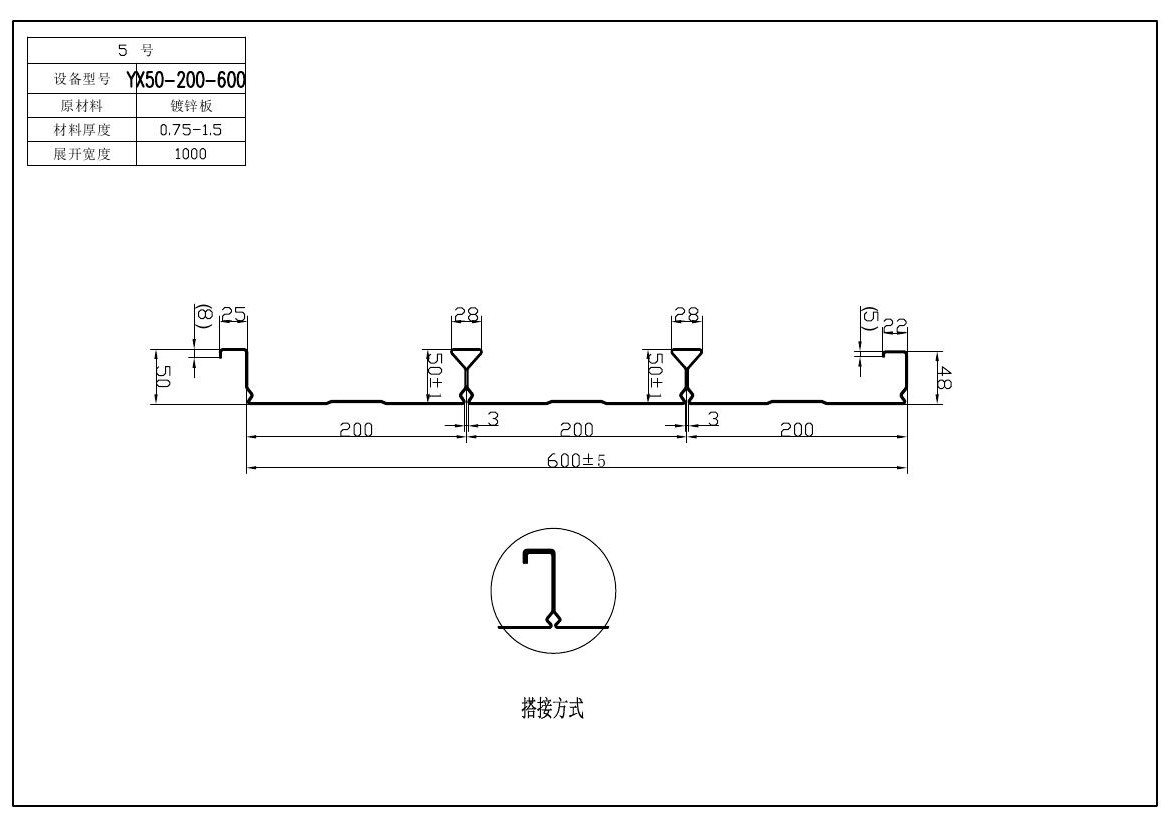
闭口楼承板的使用愈加的普及和广泛,它相较于普通开口扳具有许多优势,同时也满足现在的施工要求。对于闭口楼承板,我们可以从板型截面和技术要求两大方面来全面的分析闭口楼承板的十大优势。


一、闭口楼承板板型板底平整、腹板贴合,可根据各种房间的不同功能和需要提供多种板底天花处理方式。如直接喷漆可做成企口型天花板(状似铝扣板)、也可披刮腻子后涂刷水性涂料做成平板天花板、还可直接贴壁布或壁纸装饰成彩色天花板或利用闭口独特的卡槽悬吊系统安装吊顶,而能更经济地满足业主的审美需要。
二、闭口楼承板截面重心距板底16mm左右,小于开口型或缩口型截面参数,按塑性理论分析组合楼板结构承载力时,混凝土压力合力中心与钢板拉力合力中心具有更大的内力臂,这表示材料强度发挥更充分,因此闭口组合楼板具有更大的结构承载力或者说具有更高的安全系数。
三、闭口楼承板组合楼板能够减小楼板厚度,增大净空高度。采用开口楼承板,小板厚需126mm,而采用该板型小只需104mm。
四、闭口楼承板独特的卡槽悬吊系统能为建筑物板底机电管道安装提供方便,该系统无需在板底打眼或预埋铁件,只需轻松将两只卡片插入板底沟槽内,便可提供200—250kg吊重吊点,拆卸也很方便。
五、闭口楼承板肋角使混凝土对楼承板的握裹力更强,组合楼板达到真正的组合作用。
六、闭口楼承板严格按照设计铺板图在工厂加工,排板顺序均已编号,现场施工无需切割和补板,方便于钢构公司现场安装。
七、闭口楼承板排板时只需按跨距顺排,与钢梁顺接时,由于板底平整,有足够与钢梁实接面积。因此不用处理可直接铺过去(开口板因要避免与钢梁虚搭而需切割补板)。
八、开口板在端口处应封堵板,以免浇筑混凝土进从板底开口漏浆,而闭口楼承板因腹板闭合而不用端头堵板。
九、闭口楼承板因板底平整,无论与钢梁横搭还是顺搭,均能与钢梁上翼板充分结合,因此钢梁上翼板顶面无需喷防火涂料。而开口型钢承板与钢梁之间具有空洞,需做肩塞补满空洞。
十、闭口楼承板完全替代下层钢筋,减少现场钢筋制作量,可减轻现场劳动量,加快施工速度。同时取消原设计下层钢筋,可为楼板中铺设电线套管提供更大空间。
下一篇:楼承板的名称
上一篇:组合楼承板的施工细节有哪些”
联系海逵
无锡海逵楼承板是专业楼承板厂家,提供开、缩、闭口楼承板、压型钢板、钢筋桁架楼承板、铝镁锰板及CZ型钢,厂家直销,价格优惠!

